Project Location: Wolverine Creek, Yukon, Canada
Project No. BSMC 2024.04/05-0200
Created By-
Md Muhtashim Jahin (Network Engineer)
Krish Lakhan (ICS Specialist)
Sina Faraj Poor (GRC Analyst)
Puvit Srithep (Project Manager)
Introduction
In an elastic cyber-construct that happens 10 years from now; you are part of an engineering design team for a green field copper, zinc and lead mine. Your Client, The Blue-Sky Mining Company (BMSC) world headquarters are located in Vancouver, Canada. BSMC has four active mining sites they are in Silobela, Zimbabwe; To Anua, New Zealand; Katherine, Australia and Igarka, Russia, and two virtual mining sites that reside in Azure servers located in Redmond, Washington.
Scope of Work
My design team is responsible for the network design and architecture for both the OT and IT networks for the entire Wolverine Site. Each team will need to provide the following:
Equipment Count
Here’s a complete count of all the devices and systems identified across the different operational zones:
Equipment List
Project Background
Project Description
The project is greenfield, and is located at Wolverine Creek, Yukon, Canada. The site is remote, and will use 5 – 20 MW diesel generators for site power; there are no land lines (power or communications) that connect the site to the outside world. A 55 km haulage road is under construction; it will connect to Hwy, 66 at km 55, and provide access to Kitimat, BC for overseas shipment of the ore concentrates. The site layout drawings are as follows.
General Site Layout Plan
Industrial Complex General Arrangement Plan
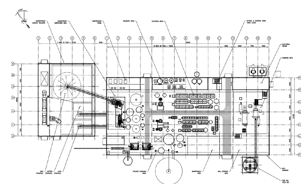
Milling Building and Concentration Loadout Building Layout Plan
Site Environmental Data
The lowest recorded winter temperature at the site is -60 °C, and the highest on record summer temperature is 35 °C.
Deliverables and Design Criteria
Network architecture drawing design criteria.
of the equipment, enclosures and patch panels.
network switches located in the zones will be shown on the drawing. Your
design should include a 15% contingency for future expansion.
the type of cable used and which fibers are used to service each of the
zones.
cables and fiber optics, used throughout the network needs to be included with
your submission. The cable specifications will need to be cross-referenced to
locations where the cables are used in your Network architecture drawing.
Bill of Material design criteria.
requirements.
Client’s Project Standards
To maintain consistency across all their sites, the Client has chosen to apply their corporate engineering standards to this project. Proposal submissions must use the following Client standards.
Equipment IDs
For asset tracking, the Client uses a cloud-based SAP system, the system which allows BSMC to assign a unique ID number to all their assets.
The following table shows the asset tracking number schema for this project:
For example, Asset 05.05.006.1 is located at the Tailings Pond on the Wolverine Site and is a Single (Non-Redundant) Controller that is labelled as asset item number one.
All the project equipment will need to be identified by its asset number in the architectural drawing and the bill of materials that are part of the deliverables.
Network Architecture
Zone 01 – Underground
used for Safety, Control and Administration purposes. The office will contain the
following equipment,
ventilation systems. Note, all control equipment will be located top side as the
humidity underground will be too high.
system will have a fiber optic Ethernet interface. The radio emergency channel
will need to be monitored in the Top side office and from both the Site Safety
Office and the Control Room.
Zone 02 – Crushing
Zone 03 – Processing
The Mill Building is located 50 m North-East of the Crusher Building. The processing operations will be required to run 24/7/365, for the first year of operations. A cloud based predictive maintenance system will be used to schedule the equipment maintenance.
This area contains the following equipment,
Zone 04 – Shipping
Operated only during day shift.
This area contains the following equipment
Zone 05 – Tailing Pond
This area contains the following equipment,
Zone 06 – Power
This area contains the following equipment,
Zone 07 – Offices
This area contains the following equipment
Zone 08 – Control Room
This area contains the following equipment,
Wire Colour Coding
The Client also uses the following colour code schema to identify their network cables:
Bill of Material design criteria.